
山野的美,贵在清静,贵在古朴,贵在素雅。
依山而建的美式田园风格,
满足了我们对于桃花源般山野生活的所有幻想,
在天地间感受生活本源的美好,
勾勒一个亲近自然、宁静舒适的居住环境,
令人心驰神往,浮想翩翩。

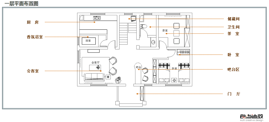
客厅


吧台





主卧



次卧



客房

书房



烟云为笔墨,闲卧看山水,
洒了一片青,又罩了一层蓝,
黑白浓淡,青绿晕染,
似乎看得到山间雾岚,
闻得到林间湿气。

茶室


楼梯


庭院


案上望山川,
枕畔闻虫鸣,
邀一对青山入座,
请半潭清水烹茶。








案例名称:平谷别墅设计—美式田园丨“遇见桃花源”
案例时间:2016-10-25
客户概述:
所在地:北京平谷
设计师:李莉
案例面积:160㎡
项目时间:2016-2
空间风格:美式田园风格