案例名称:东贸国际酒店公寓--新中式
案例时间:2015-07-27
客户概述:
案例类型:样板间软装配饰——新中式软装
所在地:燕郊
设计师:李莉
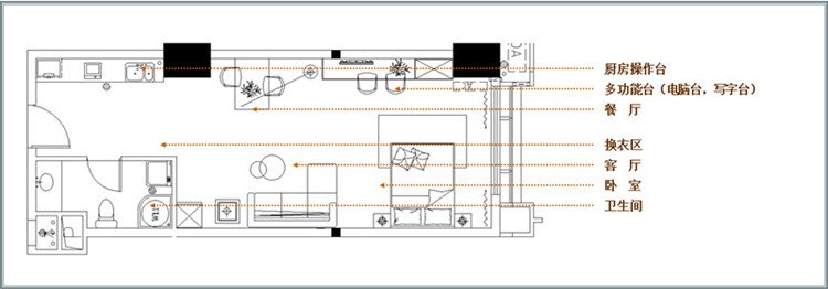
案例面积:48平方米
项目时间:2015年7月
空间软装主题:恬静 自然
空间软装色彩:柚木色 象牙色、灰蓝色
空间软装呈现:人文 典雅
空间软装风格:新中式
此空间为东茂国际酒店式公寓样板间项目,整体空间运用现代简洁的线条,融入中国风元素,具有古典传承又有时尚现代之风。色彩上运用高级灰,象牙白搭配高贵淡雅黄,让空间亮丽又不失典雅。顶部搭配线条简洁的新中式风格灯具,再点缀山水写意的挂画使空间多一份雅致,客厅配饰具有优雅造型的钓鱼灯,使空间意境幽远,稳重中透出活泼,餐区墙面点缀精致的蓝色金色搭配的装饰瓷盘体现出居者生活品味,书桌上放悬挂隶书条幅文化涵养,透出安然之态,在这样的空间之中定能感觉到中华之美。













