
面 积 | 130㎡
平面分析
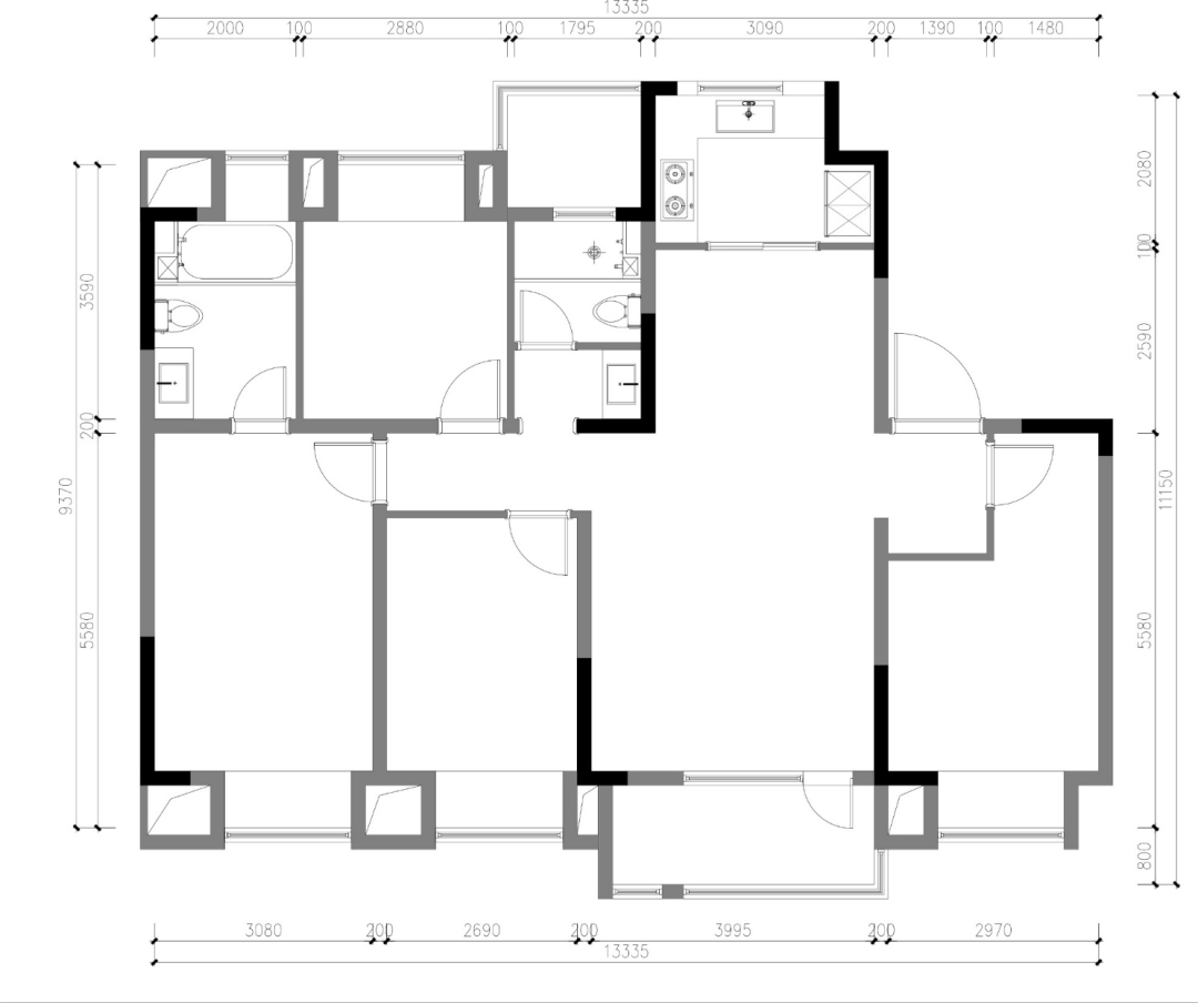
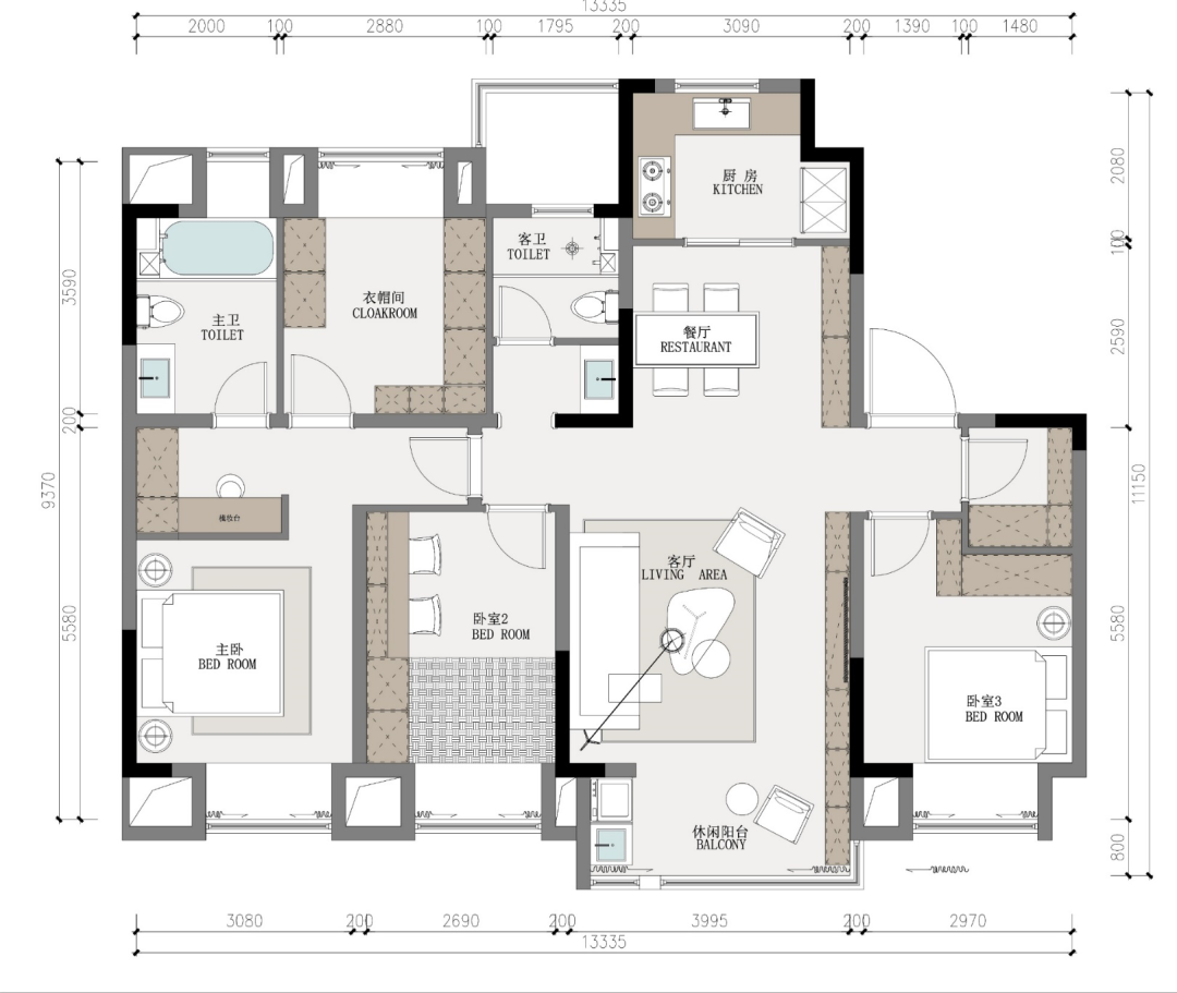
● 原始平面 ●

户型 :四室两厅两卫
优点:
1、标配4房2卫,满足更多功能需求,可预留空间足够;
2、南北飘窗较多,拉长空间延伸感;
缺点:
1、单个房间空间局促;
2、全屋收纳空间较少。
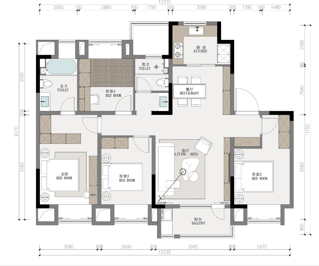
● 平面方案 Ⅰ ●

人物定位:四口之家,一个男孩,一个女孩,需要预留客房
设计思路:基本不更改硬装结构,在保留四个房间的前提下,增加各个空间的收纳空间。北房间用来做多功能房间,以收纳和办公学习为主,保留居住的功能。
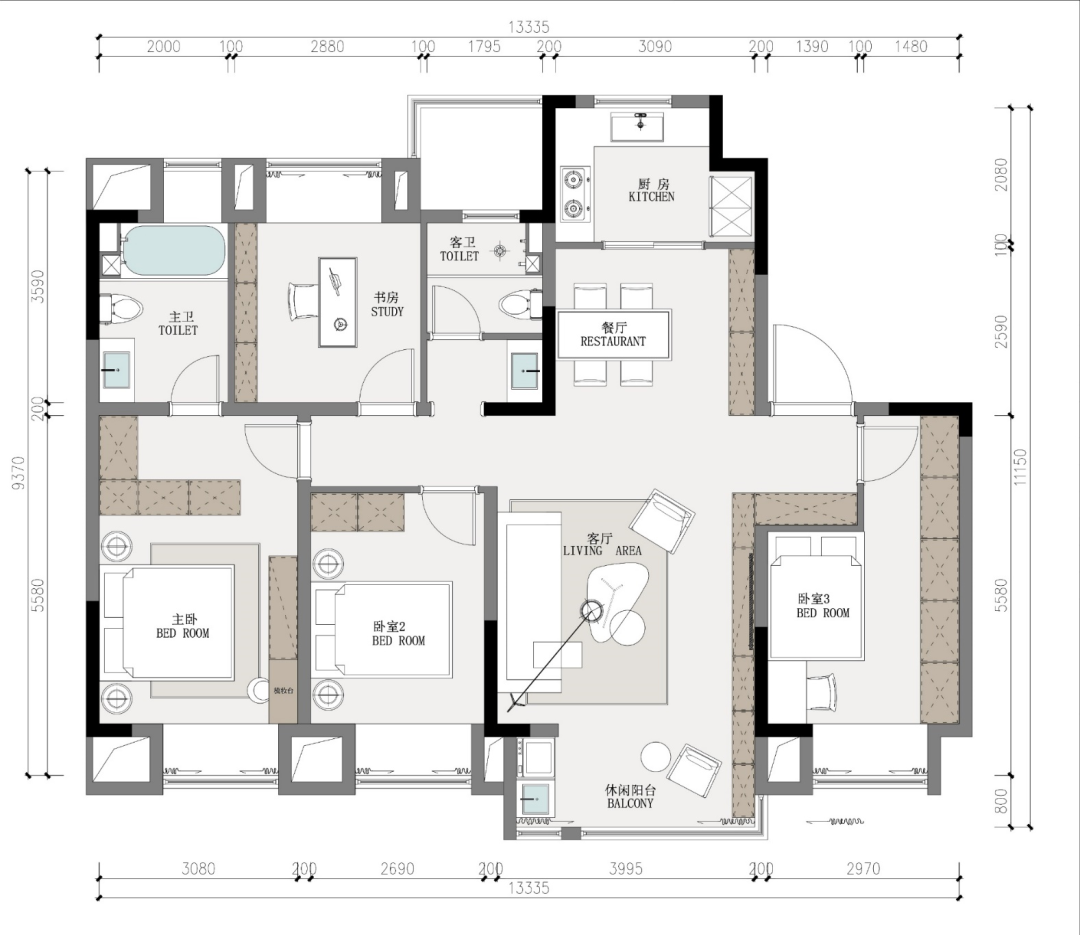
● 平面方案 Ⅱ ●

人物定位:三口之家,青少年,偶尔老人过来居住。
设计思路:阳台打通,打造多功能阳台。增加门厅换鞋柜和餐厅餐边柜的储物功能,保留独立书房。卧室3增加储物空间。
● 平面方案Ⅲ ●

人物定位:三口之家,孩子要在自己房间写作业,偶尔老人过来居住
设计思路:客厅整体打通,视觉上空间增大,增加活动范围,更好的培养亲子感情,北面一个房间改成衣帽间,增加储物空间。
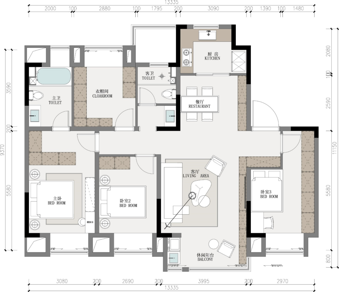
● 平面方案Ⅳ ●

人物定位:三口之家,孩子要在自己房间写作业,偶尔老人过来居住
设计思路:门厅增加独立入户鞋帽区,客厅整体打通,视觉上空间增大,增加活动范围,更好的培养亲子感情,把北边一个房间划分到主卧区域,让主卧成一个大套间。
软装意向分析
● 玄关 ●


对于无玄关的户型,入户门左右侧有较长的靠墙区域,且安置鞋柜后不会阻碍空间的利用,那么可以将鞋柜平行布局在门体的一侧。柜子与门体位于同一方向,进门后的空间感依旧保持宽松舒适,又能实现较大面积的储物收纳空间,狭小的转角区域亦可以得到合理利用。
● 客餐厅 ●



● 主卧 ●


●次卧 ●


● 衣帽间●
