户 型 | 160㎡
项目空间分析
原平面分析

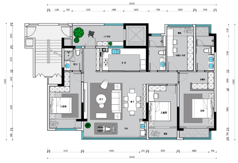
E1

E2
户型:四室两厅三卫
优点:
1、主要采光向为正南向,保证室内日间明媚有光照,且不会受到阳光直晒。
2、主卧套房,保证业主隐私,增加居住便利性。
3、有晾晒衣物的阳台。
4、有了入户花园,打开入户门后,不用担心室内被一览无余,房屋的私密性大大提高。
5、每个房间都带有飘窗,整个房型尺度感很大。
缺点:
1、卫生间居中,位置不合理。
2、朝北卧室空间紧凑,需要根据实际需求重新规划。
3、储物空间需要优化。
平面方案

E1
入户是一个阔绰的花园,爱好种花养草,亲近自然的人,可以将这里打造成一个小花园,入户花园也打造了收纳柜,用来收纳一个种植花花草草的工具,以及日常出门的鞋子,实用性更强,穿过入户花园,推开门就是走廊和客餐厅一体化,阳台和客厅打通,采光更为充足,空间更为宽敞,阳台做洗衣台面设计,也可以在阳台摆放健身器材,用于强身健体,客厅中以沙发作为隔断,分隔休闲区和就餐区,两者既保持一定的联系,又能相互独立,厨房中做U型台面设计,空间宽敞,动线流畅,格局合理,人性化设计,更省时省力。
四间卧室,三间朝南,采光充足,父母房中带有独立卫浴,方便老人起夜,卫生间更是要做适老化设计,方便老人居住和使用,沿墙面定制的L型收纳柜,***利用拐角空间,收纳功能强大。儿童房带有飘窗,视觉效果宽敞,改良采光,让房间更加明亮,稍微装饰下,铺几个蒲团,坐在午后的阳光里,看书喝茶撸猫。主卧中L型衣柜设计,形成独立的小型衣帽间,浴室中两个盥洗盆设计,方便男女主人早上上班时,不会出现匆忙争抢的现象。朝北卧室设计成衣帽间和书房,解决家中收纳问题,同时也提供了独立安静的学习工作空间。

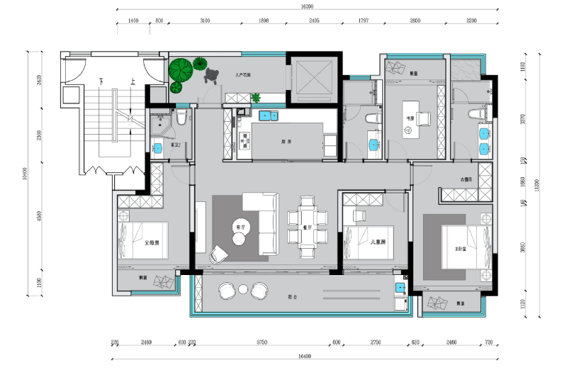
E2一
两个户型***大的区别就是阳台,E1户型中的次卧有飘窗,E2户型中的次卧是连接客厅空间的超长阳台,集洗衣晾晒休闲功能于一体,客厅中使用L型沙发,家居设计更为时尚,也能让客厅空间得到更加充分地利用,可跟据需要进行变动,让客厅空间更具有新鲜感,北次卧设计成独立的书房,做整墙的收纳柜体,用于收纳书籍文件。

E2二
和E2户型中的***稿设计方案相比,第二稿设计方案中,打通了客厅阳台空间,使得整个客餐厅空间更加宽敞明亮,客餐厅空间更加相容,餐桌延长台面装有水池,方便用餐时洗手洗水果等,沙发椅等不规则的设计,使得整个客餐厅空间更具有设计感、时尚感。
软装设计意向分析
玄关


入户玄关让人眼前一亮,鞋柜底部留空,放鞋方便又美观,鞋柜底部可以安装声控灯带,拿取鞋子会更加方便,同时,声控灯带也能给生活增加更多的趣味性,把换鞋凳组合到鞋柜里,做成一体的设计既能保持空间的美观简洁,又能方便换鞋,也是一种比较流行的设计,鞋柜中间留空,随手置物很方便,也能让玄关显得没有那么拥挤。
客厅


深色木材和灰色系搭配,氛围沉稳的同时也不乏温暖感,嵌入式的电视机设计,将电视机嵌入到电视背景墙内,电视背景墙做收纳柜,线路可以隐藏在电视后面,大气又整洁,很多家中的杂物都可以放在储藏柜里,储物功能直接翻倍,客厅整体的装修风格,给人很温馨、很舒适,有种高雅大气的时尚感,色调柔和低调有内涵,在家具与色彩搭配上尽显简约大方,浪漫优雅,有韵味。
餐厅


餐厅要以简洁为主,无需过多的装饰,简单的灯具就是***好的装饰品,餐边柜的用处除了储物功能与装饰功能之外,还具备展示物品的作用,业主可以把收藏的酒、餐盘杯子或工艺作品放在餐边柜的橱窗中展示出来,烘托餐厅的氛围,既实用有充满了格调。
主卧


在房顶凹槽处做灯带设计代替原有的主灯,实现极简大方的灯具设计,让整个房间简洁明亮,视觉上房间更加宽敞,L型透明衣柜,在卧室中形成了小型衣帽间,同时能作为隔断,分隔洗浴区和睡眠区,茶色的透明玻璃柜门提升空间的通透感,实用又高级,拿取衣服更加方便,更有一种精致的高级感,让衣柜中的衣服成为一种展示品,美观与实用兼具。
儿童房

儿童房的装修要童趣而不幼稚,伴随着孩子的成长,依旧能对房间的装饰拥有新鲜感,男生房的设计,更加偏素雅简单,女生的房间,粉色和原木色的结合,梦幻而不显幼稚,再辅以白色打底,整个空间精致又浪漫。
老人房


对于老人来说***重要的就是睡眠,因此,老人房中的隔音一定要做好,这样老人才可以睡好,其次,便是双层窗帘的安装,一层用于白天遮光,避免阳光过于强烈,一层是晚上的隔光窗帘,保证室内的睡眠环境,床头柜***好做圆弧设计,没有菱角磕碰,床头背景墙的线条灯,采用暖色灯带,方便老人晚上起夜上厕所。
北次卧


鉴于北次卧空间有限,将北次卧做书房+衣帽间二合一的设计,一侧做靠墙书桌,另一侧做到顶衣柜设计,学习储物两不误,家中储物空间充足时,可以将衣柜改造成整墙的书籍收纳,将整个空间变成书房,空间独立不受打扰。
阳台


将洗衣间放在阳台上,缓解卫生间的空间,也更加方便衣服的晾晒,在阳台上定制一组柜子,把杂物都放在里面,阳台采光充足,可以在阳台上打造一组休闲桌椅,喝喝茶,聊聊天,欣赏窗外的风景,阳台的阳光也是培养花草的培育室,可以种些花花草草,改善一下阳台环境和空气。
整体预算估算
