
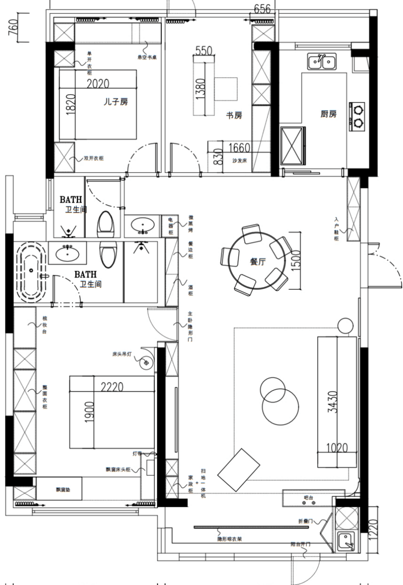
面 积 | 165㎡
01.平面方案

户型 :四室两厅三卫
优点:
1、正南向采光保证日间室内明亮有光照,且不会受到阳光直照;
2、餐客一体,生活方便;
3、阳台较长,具备基础晾晒功能;
4、主卧套房设计保证业主居住隐私感,增加居住便利性。
缺点:
1、入户即是厅,缺少过渡空间;
2、全屋收纳空间较少;
3、主卧床正对卫生间。
设计思路:
1、客厅与阳台考虑打通,地面通铺;
2、主卧床调换床的位置到东侧,离卫生间远些;
3、儿子房小阳台打通,增加房间面积;
4、书房阳台地面找平同室内高度,小阳台不封窗;增加沙发床也可以当做临时的房间。
02. 设计效果


△ 客餐厅
△ 主卧