
户型 | 208m2
项目空间分析

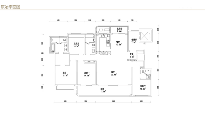
户型 :四室两厅三卫一厨
优点 :
1、门厅有储物柜,满足基础收纳需求;
2、整体区域空间方正,南北通透,采光和通风都比较好;
3、三居室朝南,空间比例适中。
缺点 :
1、门口储物柜功能单一,储物柜深度较窄;
2、收纳空间不足。
软装方案分析

门厅入户增加玄关储物柜,解决换鞋、储物、挂衣的问题??吞黾庸δ苄缘难≡瘢陨撤⑽舳?,增加开放式书房,选择整墙的收纳架,再配上一张自带高级感的书桌,轻松营造出有品位的学习工作环境。也可以当作茶室来使用,随时改变空间性质。
厨房做半开放式,用折叠门进行区别,打开门时整体厨房、餐厅,放眼望去,整个空间开阔明亮,使得空间的气质一下子就提升起来。
因为过道比较长,所以为了增加储物,做嵌入式收纳柜,不影响来回走动,也能将物品轻松“隐藏”。
主卧做套房设计,作为业主的私人活动空间,起居打扮在这里都能完成。另外三间卧室作为儿童房、长辈房和客房,房间以简约为主,按照房间定性进行规划。
软装设计意向

现代轻奢风
是一种生活态度,着力于表现简约、舒适、低调而内敛的生活品质,同时又不失高贵与奢华。所谓轻奢主义,顾名思义,就是“轻度的***”,也是让低调的生活更富内涵。
· 电梯厅 ·

鞋柜 做到顶设计,到顶的空间可以放置不常穿的鞋子或鞋盒,可以增加很多的收纳空间,鞋柜高柜中间可以留空,台面可以摆放钥匙等小物品,台面下方设计小抽屉,可以放置雨伞或购物袋,出门方便拿取。
换鞋凳 需要注意选择的家具颜色风格应当与整体环境保持一致,换鞋凳下方可以设计为物品收纳的空间,主要收纳拖鞋、鞋刷或其他换鞋时需要的物品,因为这些是日常频繁使用到的物品,宜采用明格存放;也可以以卡座的形式设计,高度根据身高和用物习惯去选择。
· 客厅 ·


在客厅设计 阅读区 或者开放式书房一方面是对客厅多功能的打造利用,节约空间;另一方面也可彰显主人的书香气韵,有利于培养良好的家庭共读氛围。
用沙发做隔断,分隔出两个区域,沙发后是开放式书房,双人办公桌设计,不管是夫妻办公还是陪伴孩子学习,都能满足。同时利用一面墙体做满墙书柜,满足收纳或装饰性物品摆放。
· 餐厅 ·


在餐桌旁增加一个餐边柜用来 收纳 餐厅中杂乱的物品,收纳能力完完全全大大提升,缓解了拥挤厨房的压力。餐边柜开放式和封闭式相结合,开放式可以放厨房里容纳不下的电器类,比如壁挂式饮水机、微波炉、电饭煲、烤箱等;封闭式柜子则收纳不常用物品。
除了收纳,餐边柜还有一个重要作用就是增加空间 颜值 。多花点心思设计餐边柜,可以起到锦上添花的效果,增添一些玻璃门或者开放式隔间设计,摆放上葡萄酒和装饰品,让单调的餐厅墙面变得有趣生动。
· 主卧 ·


主卧摆放斗柜兼梳妆台功能,由 步入式衣帽间 免除卫生间对着卧室的尴尬,打造两排顶天立地大衣柜,镜面柜门既可当穿衣镜使用,又能扩大视觉空间。
主卫双台盆设计能够提高生活效率,交付时的成品浴缸满足业主泡澡需求,淋浴区与坐便区均采用玻璃隔断,让光线和视觉更加通透。
· 儿童房 ·


在色彩搭配上,使用 鲜艳明快的色彩 ,不仅可以使儿童保持活泼积极的心理状态和愉悦的心境。而且还能改善室内亮度,造成明朗亲切的室内环境,处在其中,孩子能产生安全感和归属感。
家具宜少而精,给活泼好动的孩子留出更多的活动空间??梢远喙δ茏楹弦惶宓募揖?。同时考虑到孩子们喜欢变化的特点,家具宜选择易移动、组合性高的,方便他们随时重新调整空间,有助于增加孩子想象的空间。
· 次卧 ·


如果客卧长期有人借住或作为 老人房 使用,应选择舒适体验度更高的床+定制一体柜,轻松满足坐,卧,收纳衣物,学习等功能。定制一体柜中增大开放格的区域,让物品随手拿取更便捷,同时还能增加空间的通透感,让小空间做满柜子也不显拥挤。
· 衣帽间 ·


衣帽间设计的***法则就是要有良好的收纳功能。要明确地划分好 挂衣区、叠放区、鞋包区 等不同区域,在足够宽的狭长形的空间,衣帽间可以设计成平行而立的二字型,不仅可以***大化地利用空间,还可以保证空间的通透性。
除此之外,开放式衣帽间较为省地儿,而且由于衣柜没有柜门,可以一目了然,拿取衣物比较方便,但是没有柜门衣服很容易就会落灰,所以可以选用玻璃的推拉门或者平开门。
· 休闲阳台 ·


休闲阳台可以打造为一个 花园 ,让家里充满生机,如果不喜欢家里的花太多,摆放的满满当当,则可以挑选钟爱的几盆,就已经让人眼前一亮了;或者在阳台加一个书架,摆上喜欢的书,坐在小吧台上在生机盎然的小花园里,畅游于知识的海洋。
· 生活阳台 ·

在生活阳台上设计洗衣池,可以选一体式台盆,带三面挡水。遵循上烘下洗的原则,衣服拿出来就可以穿,减少晾晒时间。转角的空间刚好收纳家政工具,适当利用洞洞板进行收纳,更加整洁。